項目名稱:芮家塘農貿市場設計
市場面積:1500平方米
項目地點:江蘇省常州市鐘樓區
設計單位:飛洋建筑設計/飛洋市集設計研究
服務范圍:市場調研、商業規劃、空間設計、動線優化、施工圖及軟裝設計


【一句話項目概括】
以“現代生態化”為綱領,通過高性價比的模塊化系統設計,打造常州鐘樓區集綠色體驗、高效運營與成本控制于一體的社區農貿典范。





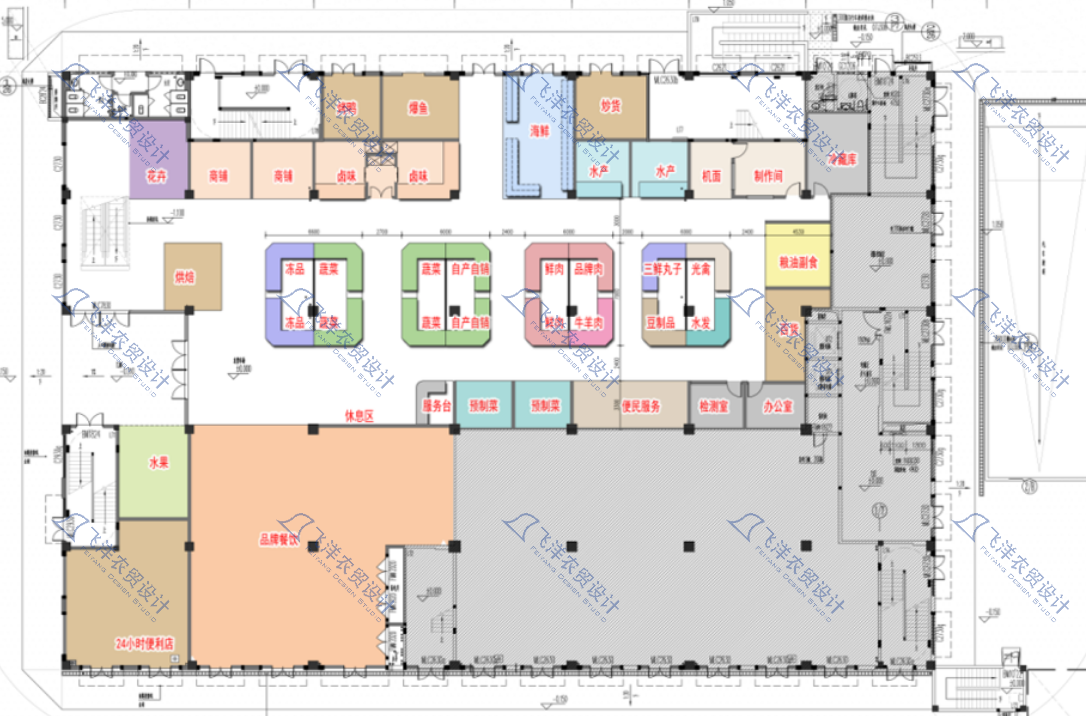
【項目概況】
芮家塘農貿市場位于常州市鐘樓區成熟社區核心,項目直面社區市場普遍存在的“環境體驗、運營成本與投資回報”之平衡難題。設計團隊摒棄過度裝飾,以“智慧降本,體驗增值”為核心策略,在1500平方米的空間內,構建了一套完整的模塊化、生態化、易維護的設計體系,旨在用理性的設計語言實現感性的空間氛圍,為社區居民提供一個明亮、清新、高效且可持續的日常采購目的地。

【核心挑戰】
如何在嚴格的造價控制框架內,實現市場環境從“傳統簡陋”到“現代清新”的品質躍升?
如何通過設計預控未來的運營與維護成本,實現項目的長期經濟性?
如何在標準化、模塊化的高效體系中,注入令人愉悅的生態氛圍與購物趣味?
【優勢分析】
精準的社區定位:服務于高密度成熟社區,擁有穩定且高頻的消費客群,需求明確。
前瞻的設計理念:“現代生態化”理念契合消費升級趨勢,綠色、明亮的形象易于建立品牌好感。
系統的成本控制思維:從設計源頭貫穿材料、施工與后期維護的全生命周期成本考量,保障項目綜合效益。
【難點分析】
成本與效果的極限平衡:有限的單方造價需精準分配至關鍵體驗點,避免“處處平庸”或“頭重腳輕”。
耐用性與美觀度的統一:農貿市場環境損耗大,所選材料必須在耐臟、易潔、防滑等實用屬性上表現優異,同時保持視覺上的整潔美觀。
標準化與靈活性的矛盾:為控制成本而采用的模塊化設計,需能靈活適應不同業態的個性化陳列需求。

【設計策略(系統化降本與體驗增值)】
1. 頂面系統:輕量化造型與集成照明
采用模塊化組合燈具與輕量化懸浮吊頂造型,一體化解決照明、風管與噴淋管線排布,施工快捷,大幅降低人工與材料成本。懸浮視覺有效拉伸空間縱深感,規避低預算項目常見的壓抑感。
2. 立面與標識系統:耐久界面與動態信息
墻面通鋪高性價比的白色防滑瓷片,奠定明亮整潔的基底,且極易清潔維護。局部嵌入主題文化墻與動態信息屏,在低成本背景下實現文化氛圍與商業信息的靈動傳遞。
店招設計融合綠植生態紋樣與立體字標,清晰強化品類分區。標配懸掛式電子價目屏,實現信息快速更新,杜絕傳統紙質價簽的頻繁更換浪費。
3. 攤位與地面系統:標準化定制與高效維護
創新設計統一規格的波浪紋定制柜體,其造型能適配果蔬、肉類、干貨等多品類陳列,通過“一模多用”的標準化生產,顯著降低定制化帶來的高昂成本。
地面通鋪淺灰色無縫防滑地磚,色調高級耐臟,無縫工藝從根本上杜絕污漬藏匿,極大提升日常保潔效率,降低長期衛生維護成本。

4. 色彩與氛圍系統:生態意象與視覺引導
整體以 “綠+白” 為主色調,局部點綴溫潤木色,營造通透、清新、自然的“生態集市”氛圍。通過色彩與光線的視覺引導,優化顧客動線,無形中延長停留時間,提升商業轉化機會。
【總結】
芮家塘農貿市場項目,是一次對“低成本高品質”社區商業空間的成功探索。設計團隊通過頂層系統思維,將“現代生態化”的理念轉化為一套可執行、可復制、可持續的高性價比設計模塊。項目不僅在經濟性、功能性、美觀性之間找到了精妙平衡,更通過前瞻性的細節設計,為市場方預控了未來數十年的運營維護成本。它證明了,優秀的社區設計并非依賴于高昂的投入,而在于精準的策略與智慧的系統整合,最終為常州鐘樓區的民生工程樹立了一個“投入精明、體驗精明、運營精明”的標桿樣本。
